
STÉPHANE ANGELICA
ARCHITECTE D'INTÉRIEUR · DÉCORATEUR
ÎLE-DE-FRANCE · EURE-ET-LOIR · ALPES-MARITIMES ET AUTRES VILLES DE FRANCE
REDISTRIBUTION DES PIÈCES AVEC LES TMA (TRAVAUX MODIFICATIFS ACQUÉREURS)
CONSEILS EN AGENCEMENT ET AMÉNAGEMENT SUR PLAN VEFA
CHOIX DES MATÉRIAUX · DES COULEURS · DES MEUBLES SUR MESURE...
Vous venez d'acheter un appartement ou une maison en VEFA (vente en état futur d'achèvement) à Paris et Île-de-France, vous souhaitez faire des modifications, bénéficier d'un regard et de conseils professionnels avant de vous décider ? Grâce aux TMA (travaux modificatifs acquéreurs), je vais vous aider, vous guider, vous conseiller afin de bien optimiser votre futur logement neuf. En fonction de la superficie de votre habitation et les acceptations du promoteur, nous explorons les modifications éventuelles de chaque pièce en gardant la base des murs porteurs.
Selon la taille et la forme de la pièce, nous déterminons la création, la suppression ou le déplacement d’une cloison pour plus d'espace, de créer une pièce supplémentaire, un ou plusieurs placards dans les espaces perdus, la modification des arrivées d'eau, la configuration de la cuisine (avec ou sans îlot), de la salle de bains (douche ou baignoire), du WC (à poser ou suspendu), l'emplacement du sèche-serviettes, d’un lave-mains, du lave-linge, du sèche-linge, le sens des ouvertures des portes, de la validation du schéma électrique indiquant l'emplacement des prises électriques, prises réseaux, interrupteurs, appliques murales, plafonniers et le plus important, l'emplacement des radiateurs (qui sont souvent mal placés) afin de bien agencer et optimiser chaque pièce.
Le jour de notre rendez-vous à votre domicile, ensemble, autour du plan de votre logement ou via FaceTime, WhatsApp ou Google Duo pour les acquéreurs qui vivent en province qui souhaitent faire appel à mes services conseils à distance, avec un plan de masse schématisé en 2D de votre futur appartement ou de maison en VEFA que je vous enverrai par mail, je vous présenterai votre futur plan des espaces de vie à modifier : redistribution des pièces, des cloisons, sens des ouvertures, déplacement des portes, des WC et emplacement des radiateurs.
Ce plan de masse schématisé en 2D comprend également : les côtes des meubles sur-mesure de cuisine, de salle de bain, de salle d’eau, les emplacements des placards pour chaque chambre, les rangements divers dans les espaces perdus, le positionnement et l’organisation des meubles de cuisine, salle de douche, canapés, fauteuils, table de salle à manger, buffet, lits et chevets, bureaux, etc. Grâce à ces conseils et recommandations, vous disposerez des éléments les plus importants pour bien optimiser toutes les pièces de votre bien immobilier neuf en VEFA. (Voir un exemple de plan VEFA avant/après)
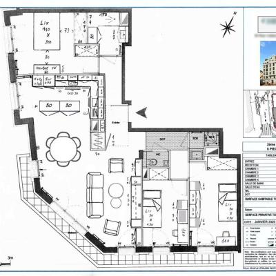
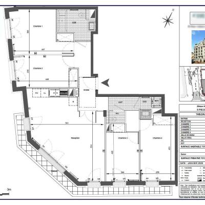
EXEMPLE D'UN PLAN VEFA : AVANT APRÈS
PLAN D'UN APPARTEMENT EN VEFA
PROPOSÉ PAR LE PROMOTEUR
PLAN SCHÉMATISÉ PROPOSÉ À MES CLIENTS
MEUBLES COTÉS POUR CHAQUE PIÈCE
NOUVEAU PLAN A PRÉSENTÉ AU PROMOTEUR
EN SAVOIR PLUS · CLIQUEZ-ICI
VISUALISER CE PROJET D’APPARTEMENT VEFA EN RENDUS 3D ULTRA HD
Avec les documents des matériaux fournis par le promoteur, vous hésitez devant la diversité des produits proposés ? Ensemble, nous sélectionnons les revêtements de sol (parquets, carrelages, moquettes), les différents types de carrelages et de mosaïques pour les pièces d'eau et tous autres détails importants pour une visualisation optimale de votre futur logement en VEFA, afin d'éviter les fautes de goût.
Vous n'êtes pas convaincu des matériaux et des couleurs sur catalogue, vous souhaitez un accompagnement personnalisé dans le showroom du promoteur immobilier ? Une fois la date fixée par le promoteur, nous prendrons rendez-vous (me prévenir au moins 2 à 3 semaines à l'avance) et je vous accompagnerai dans le home studio de démonstration pour choisir ensemble tous les éléments et détails cités au-dessus (personnalisation de votre appartement ou de maison en achat VEFA).
En complément de votre plan modifié, je peux à votre demande réaliser le schéma électrique complet de votre futur logement VEFA. Ce document est essentiel pour visualiser l’ensemble des espaces de manière sur-mesure et pour présenter à votre promoteur l’emplacement exact des équipements électriques.
Dans chaque espace, les prises et points électriques sont prévus en fonction des équipements que vous possédez ou souhaitez installer. Dans le salon, cela inclut la TV, la barre de son, le home cinéma, le RJ45, les enceintes, la console de jeux et le lecteur DVD, ainsi que les prises au sol si nécessaire. Dans le bureau, le schéma prend en compte l’ordinateur, la lampe à poser, l’imprimante, les chargeurs et le RJ45 ou USB. Dans la cuisine, les prises sont adaptées au réfrigérateur, congélateur, four, micro-ondes, plaque de cuisson, lave-vaisselle, petits électroménagers, prises de crédence et éventuellement celles pour l’îlot central. Dans la salle de bain, le positionnement est prévu pour le sèche-cheveux, le rasoir électrique, l’éclairage d’armoire, le sèche-serviettes, le lave-linge et le sèche-linge.
Le schéma indique également l’emplacement exact des interrupteurs, variateurs et plafonniers, ainsi que des volumes d’éclairage conçus pour ceux qui souhaitent une décoration différente en évitant les luminaires de plafond classiques, avec par exemple des corniches avec spots pour mettre en valeur les colonnes de placards de rangement ou les colonnes de cuisine, ou un volume central avec LED pour un rendu moderne, raffiné et élégant, afin de garantir un aménagement parfaitement pensé et adapté à vos besoins (Tarif supplémentaire applicable)
VISUALISER CE PROJET VEFA EN RENDUS 3D ULTRA HD
Pour réaliser votre devis de meuble de cuisine, de salle de bain, de salle de douche, armoire, placard, pièce dressing et autres demandes sur-mesure, un déplacement sur le lieu de votre projet en VEFA est nécessaire.
Cela permettra de prendre les cotes exactes au millimètre près de la pièce concernée en m² : longueur, largeur, hauteur sous plafond, hauteur sous poutre, murs mansardés, les dimensions et l'emplacement des portes, des fenêtres, du coffre de volet roulant, y compris la hauteur sous encadrement et leur sens d'ouverture, les angles de la pièce (très important) pour le positionnement de vos meubles de cuisine et également pour la découpe du plan de travail, du plan vasque, les arrivées et les évacuations d'eau, les conduits et les tuyaux visibles, mais aussi toutes les spécificités, tels que les prises électriques, interrupteurs, radiateur, l'emplacement de la VMC, chaudière ou chauffe-eau, etc.
La prise de mesure est fondamentale et doit être pris avec rigueur, elle peut engendrer des conséquences désastreuses si vous vous trompez de quelques centimètres et ainsi d’éviter des déconvenues qui pourraient entraîner des frais supplémentaires. Voilà pourquoi, un déplacement sur le lieu de votre projet est préconisé. Ce premier avis technique et fonctionnel sur votre projet est un gage de sérieux et de fiabilité. Il vous assure l'établissement d'un devis juste, détaillé et chiffré conforme à votre demande. Il vous met donc à l’abri de toutes mauvaises surprises.
Si avant et pendant la construction de votre appartement ou de maison en VEFA, vous n'avez pas fait appel à mes services conseils sur plan. Lors des visites cloisons, c'est l'occasion de faire appel à mes compétences professionnelles en agencement intérieur, d'imaginer ensemble votre future cuisine équipée et aménagée, de l'aménagement de votre salle de bain, de la salle de douche, du choix des placards pour chaque chambre, d'exploiter les espaces perdus pour plus de rangement et de prendre les cotes exactes au millimètre près des pièces concernées.
Pour ceux qui ont souhaité faire des travaux modificatifs de leur logement en VEFA, cette visite est aussi l’occasion de vérifier ensemble les TMA (travaux modificatifs acquéreurs) que vous avez demandés, et l’état de leur avancement.
Si vous savez exactement ce que vous désirez pour l'agencement de votre futur logement en VEFA, à votre demande par téléphone ou par email, je vous enverrai un spécialiste en menuiserie intérieure pour réaliser votre devis de meubles divers sur mesure. Vous pourrez également définir avec le menuisier, les emplacements des penderies pour chaque chambre, de la cuisine, etc. Le devis est gratuit et sans engagement de votre part.
COMBIEN DE TEMPS LE RENDEZ-VOUS CONSEILS SUR PLAN VEFA DURE-T-IL ?
Je vous rassure, je n'ai pas de chronomètre sur moi ! Quelle que soit la superficie de votre futur logement, je prends tout le temps nécessaire pour analyser le plan de votre appartement ou de maison en VEFA et comprendre votre demande. Selon le nombre de pièces à visualiser, les questions que vous allez me poser et la demande d'agencement sur mesure que vous souhaitez faire réaliser, un rendez-vous peut durer de 1h30 à 3h00.
Le jour même de notre rendez-vous, nous formaliserons par écrit, un récapitulatif de mes conseils pour toutes les pièces de votre habitation en VEFA. Nous choisirons ceux que vous retiendrez et nous établirons également les différentes étapes nécessaires à votre futur projet d'aménagement et d'agencement pour votre appartement ou de maison en VAFA.
COMMENT JE PROCÈDE ?
FAQ : VOS QUESTIONS ET MES RÉPONSES

![]()
Nous avons acheté un appartement neuf sur plan, il nous était très difficile de nous projeter, nous étions perdu par la diversité des matériaux, des meubles de salles d'eau, des revêtement de sols, des carrelages. Bref ! Il nous fallait choisir assez rapidement. Nous avons contacté Stéphane Angelica pour nous donner des conseils sur le choix des couleurs et matières. Le résultat est magnifique . Nous sommes vraiment très heureux d'avoir fait appel aux services de Stéphane angelica. Omar et Lydia. Rueil-Malmaison.

![]()
Pour l'acquisition de notre appartement sur plan, nous avons opté pour des travaux modificatif TMA avant la livraison. Ne sachant pas comment le réaménager et l'optimiser, nos amis qui ont fait appel aux services de Stéphane Angelica, nous l'ont conseillé. Le jour J, il nous a conseillé de modifier quelques cloisons et portes, il nous a créé plein de rangement, choisi la cuisine et matériaux. En bref, le résultat est plus que magnifique. Nous vous recommandons ses services. Azra, Lino et Ruben. Neuilly-sur-Marne.

Nous avons acheté notre premier appartement sur plan répondant à nos critères. Pour ne pas nous tromper sur le choix des sols, du carrelages, des couleurs, de la cuisine, des meubles, etc, nous avons fait appel à Stéphane Angelica et nous ne le regrettons pas. Il nous a accompagnés tout au long de notre projet, Je recommande Stéphane et son équipe pour ses conseils, sa disponibilité, sa gentillesse, le respect des delais, la qualité des placards et le sérieux de ces menuisiers. Matthieu et Claire. Antony.
À PROPOS DE L'AGENCE
L'agence Stéphane Angelica met à votre service des conseils en décoration et des idées pour vos travaux de rénovation. Il se déplace sur rendez-vous à Paris (75), en Seine-et-Marne (77), dans les Yvelines (78), l'Essonne (91), dans les Hauts-de-Seine (92), en Seine-Saint-Denis (93), dans le Val-de-Marne (94), le Val-d'Oise (95), l'Oise (60), l'Eure-et-Loir (28), les Alpes-Maritimes (06), le var (83) et autres grandes villes de France. Il intervient pour tous types de projets, petits ou grands, tels que la réhabilitation complète ou partielle et de remise aux normes de biens immobiliers.
POUR UNE DEMANDE DE DEVIS TRAVAUX
Son agence concentre des experts qualifiés dans tous les corps de métiers du bâtiment, capables de répondre à toutes demandes. Nous intervenons pour la remise à neuf d'appartement ancien, d'appartement haussmannien, d'appartement semi-récent, de maison, de villa, de petit studio, de chambre de bonne. Mais également pour la pose de cuisine sur mesure, de salle de bain aménagée, de salle de douche, de WC, de toilette, etc. Ces experts en bâtiment, vous proposent gratuitement et sans engagement de votre part, un devis gratuit ainsi qu’un chiffrage précis de chaque pièce à rénover.
MODIFICATION DU PLAN D'UN ACHAT D'APPARTEMENT OU DE MAISON EN VEFA :
Elle est également appréciée pour les modifications de plans VEFA et de demande de TMA « Travaux Modificatifs Acquéreurs », mais aussi en fabrication de mobilier, meubles et rangements sur mesure de fabrication française.
ME JOINDRE
Du lundi au vendredi de 8h00 à 21h00
Le samedi de 8h00 à 19h30
Fermé dimanche et jours fériés
Téléphone : 06.03.06.38.33
Email : stephane@angelica-deco.com
LIENS UTILES