
STÉPHANE ANGELICA
ARCHITECTE D'INTÉRIEUR · DÉCORATEUR
ÎLE-DE-FRANCE · EURE-ET-LOIR · ALPES-MARITIMES ET AUTRES VILLES DE FRANCE
![]()
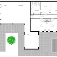
Vous venez d’acheter une maison neuve sur plan et vous avez validé les plans avec votre constructeur. Avec un peu de recul, vous sentez que certains éléments pourraient être optimisés : une pièce mal positionnée, la circulation intérieure pourrait gagner en fluidité, les divers emplacements des éclairages sont mal positionnés, les volumes ne correspondent à votre mode de vie, Il y a peu de rangements… C’est une étape cruciale, et il est tout à fait normal de vouloir affiner les choses avant le lancement du chantier.
C’est précisément à ce moment-là que j’interviens, en tant qu’architecte d’intérieur, décorateur et designer de mobilier sur mesure. Mon rôle est de vous accompagner dans cette phase décisive, en apportant un regard neuf, professionnel et entièrement personnalisé sur les plans de votre future maison. Chez vous autour du plan ou sans même avoir besoin de se rendre chez le constructeur de maison ou votre architecte DPLG, je retravaille les plans existants dans le respect des contraintes techniques, tout en réorganisant l’agencement intérieur pour plus de confort, de cohérence et d’harmonie.
Cela peut consister à repositionner une cuisine pour la rendre plus fonctionnelle, à optimiser l’aménagement des pièces d’eau (salle de bain , salle de douche , pièce WC), à créer des meubles dans le séjour, la salle à manger, des placards à l'entrée, dans chaques chambres et des rangements dans les espaces perdus, à agrandir un espace de vie ou même à repenser les façades extérieures pour un résultat plus équilibré. Chaque détail compte pour transformer un plan standard en un projet réellement adapté à vos usages et à votre quotidien.
![]()
À partir des plans fournis par votre architecte DPLG où le constructeur de maisons individuelles, je vous accompagne dans l’optimisation des espaces intérieurs, tout en respectant scrupuleusement les éléments structurels existants, tels que : murs porteurs, ouvertures existantes (portes fenêtres, baies vitrées, velux, lucarne, fenêtre de toit ou autres couvertures.
Je peux intervenir uniquement sur :
1. Déplacement des cloisons sans toucher aux murs porteurs.
2. Modification des arrivées d'eau.
3. Réalisation de meubles et rangements sur mesure.
4. Optimisation des espaces perdus.
5. Emplacements des prises, interrupteurs, des divers éclairages, radiateurs.
6. Choix des revêtements de sols.
7. Des différents types de carrelages et mosaïques pour les pièces d'eau.
8. Des menuiseries intérieures
9. Des matériaux, des matières et des couleurs.
10. Emplacement de chaque meuble, qu’il s’agisse de mobilier que vous possédez déjà ou de pièces que vous envisagez d’acquérir et tout autres détails importants pour une visualisation optimale de votre future maison.
En résumé :
Je vous accompagne dans la conception et l’aménagement intérieur comme extérieur de votre maison.
Cependant, je ne suis pas habilité à déposer un permis de construire ni à réaliser ou fournir des plans techniques officiels et cotés. Toute modification des plans doit impérativement être validée, ajustée et formalisée par votre architecte DPLG ou de votre constructeur de maison. Il devra vous renvoyer les plans modifiés avec le nouveau plan électrique pour chaque pièce de votre maison.
Si vous souhaitez un plan électrique à jour dans le cadre des ajustements intérieurs, cette prestation est disponible en supplément.
Pour en connaître les tarifs, calculés en fonction de la superficie de votre maison, merci de bien vouloir cliquer ici.
POUR UNE MAISON NEUVE
DE 9 à 99 M²
TARIF : 300 €
POUR UNE MAISON NEUVE
DE 99 à 199 M²
TARIF : 600 €
POUR UNE MAISON NEUVE
AU-DELÀ DE 199 M²
ME CONSULTER
Pour une maison standard, vous trouverez ci-dessous des tarifs indicatifs. Toutefois, pour des projets plus complexes, notamment en cas de demande d’éclairages extérieurs (jardin, terrasse, espace piscine, etc.), le tarif sera établi après une analyse approfondie, réalisée soit lors d’un rendez-vous sur site, soit à l’issue d’une étude détaillée de vos besoins spécifiques.
Cette prestation complémentaire est essentielle pour anticiper avec précision vos installations électriques, éviter les imprévus coûteux et garantir une mise en œuvre optimale. En choisissant cette option, vous sécurisez votre projet tout en valorisant durablement votre bien immobilier.
SCHÉMA DU PLAN ÉLECTRIQUE POUR UNE MAISON NEUVE
DE 9 à 99 M²
TARIF : 250 €
SCHÉMA DU PLAN ÉLECTRIQUE POUR UNE MAISON NEUVE
DE 99 à 199 M²
TARIF : 400 €
SCHÉMA DU PLAN ÉLECTRIQUE POUR UNE MAISON NEUVE
AU-DELÀ DE 199 M²
ME CONSULTER
LES MODES DE PAIEMENT ACCEPTÉS
------------------------
CARTE BANCAIRE
![]()
ESPÈCES
![]()
VIREMENT BANCAIRE
![]()
CHÈQUE REFUSÉ
![]()
À NOTER : LE PAIEMENT SE FAIT LE JOUR MÊME DU RENDEZ-VOUS CONSEILS À VOTRE DOMICILE.
À PROPOS DE L'AGENCE
L'agence Stéphane Angelica met à votre service des conseils en décoration et des idées pour vos travaux de rénovation. Il se déplace sur rendez-vous à Paris (75), en Seine-et-Marne (77), dans les Yvelines (78), l'Essonne (91), dans les Hauts-de-Seine (92), en Seine-Saint-Denis (93), dans le Val-de-Marne (94), le Val-d'Oise (95), l'Oise (60), l'Eure-et-Loir (28), les Alpes-Maritimes (06), le var (83) et autres grandes villes de France. Il intervient pour tous types de projets, petits ou grands, tels que la réhabilitation complète ou partielle et de remise aux normes de biens immobiliers.
POUR UNE DEMANDE DE DEVIS TRAVAUX
Son agence concentre des experts qualifiés dans tous les corps de métiers du bâtiment, capables de répondre à toutes demandes. Nous intervenons pour la remise à neuf d'appartement ancien, d'appartement haussmannien, d'appartement semi-récent, de maison, de villa, de petit studio, de chambre de bonne. Mais également pour la pose de cuisine sur mesure, de salle de bain aménagée, de salle de douche, de WC, de toilette, etc. Ces experts en bâtiment, vous proposent gratuitement et sans engagement de votre part, un devis gratuit ainsi qu’un chiffrage précis de chaque pièce à rénover.
MODIFICATION DU PLAN D'UN ACHAT D'APPARTEMENT OU DE MAISON EN VEFA :
Elle est également appréciée pour les modifications de plans VEFA et de demande de TMA « Travaux Modificatifs Acquéreurs », mais aussi en fabrication de mobilier, meubles et rangements sur mesure de fabrication française.
ME JOINDRE
Du lundi au vendredi de 8h00 à 21h00
Le samedi de 8h00 à 19h30
Fermé dimanche et jours fériés
Téléphone : 06.03.06.38.33
Email : stephane@angelica-deco.com
LIENS UTILES